Rehabilitación con reforma integral en Poblenou
Proyecto residencial para una familia que decrece
Necesidad
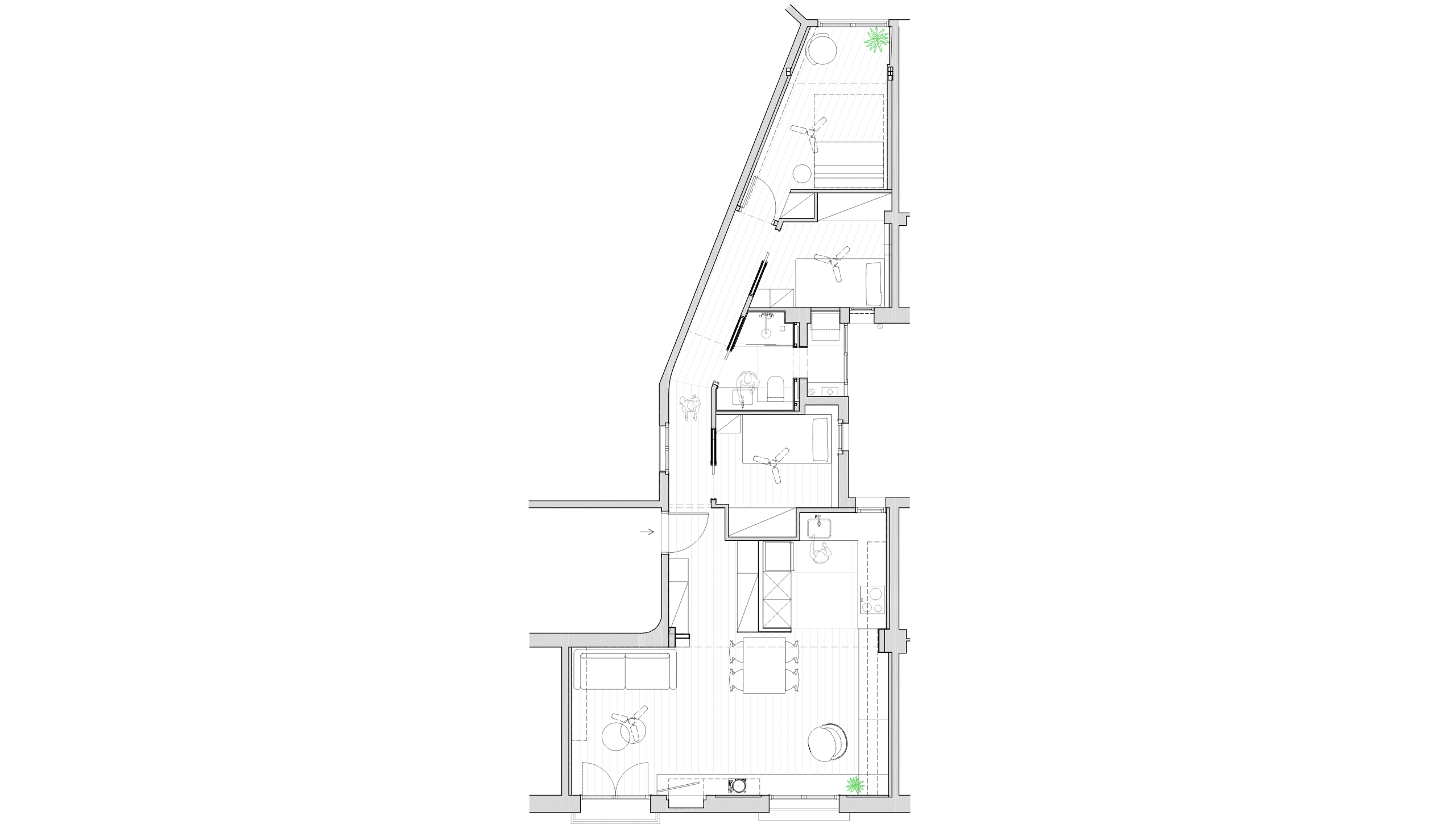
Olga y Paqui querían transformar su vivienda en un hogar donde disfrutar plenamente, con espacios pensados a su medida y adaptados a sus necesidades. Desde el principio lo tenían claro: la cocina debía abrirse al salón para ganar amplitud y luminosidad, y todo el mobiliario debía ser elegante, funcional y duradero.
También decidieron distribuir el piso con dos habitaciones individuales, cada una con su propio estilo, y una tercera estancia polivalente: un espacio pensado para su hija, recién independizada, pero que también pudiera funcionar como habitación de invitados o zona tranquila de lectura.
Retos del proyecto
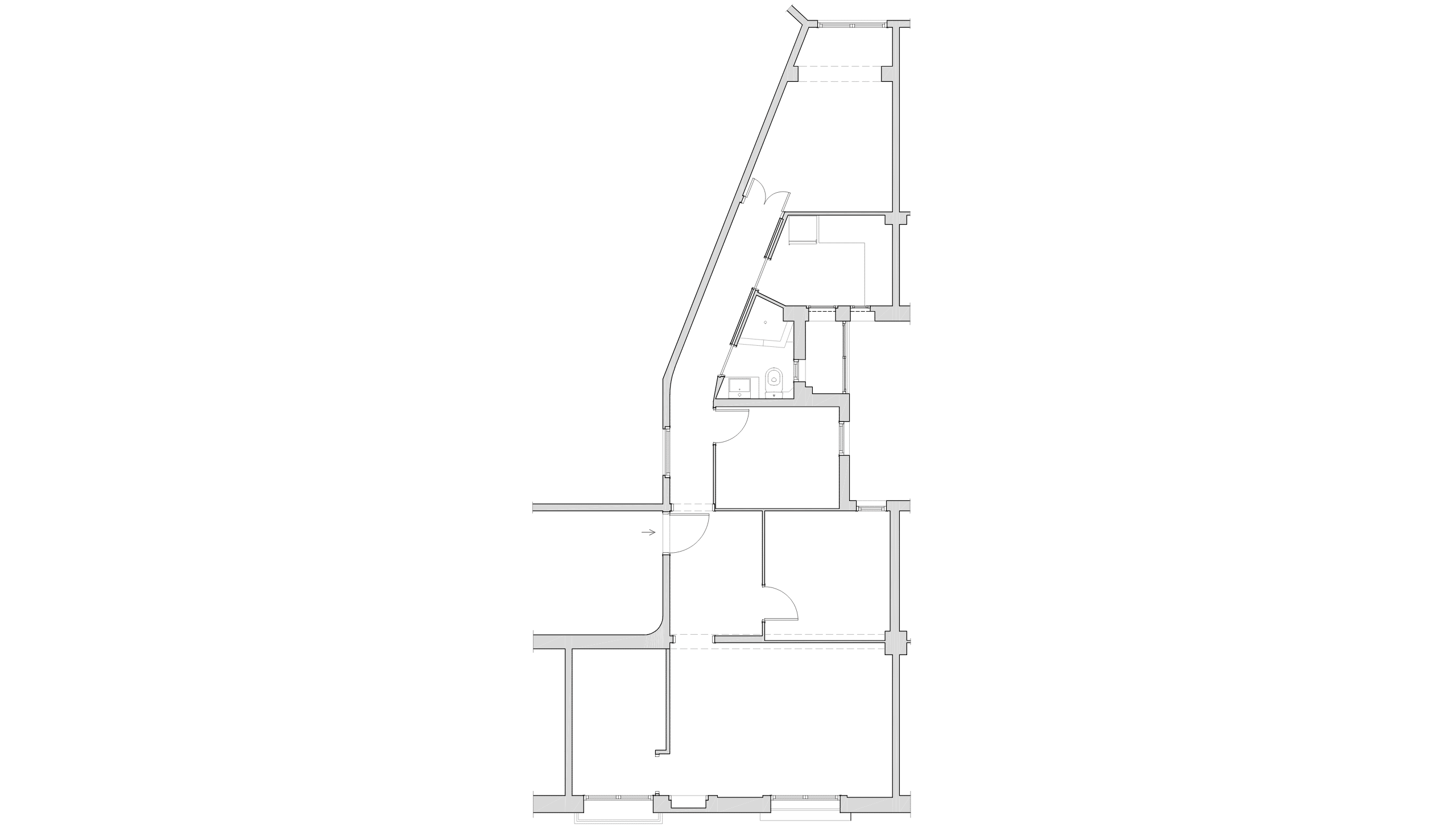
Durante la reforma, uno de los primeros retos fue el mal estado de algunas vigas, que obligó a reforzar la estructura y replanificar parte de la obra sin afectar al diseño previsto. La distribución alargada del piso, con una planta estrecha, exigía soluciones inteligentes para ganar almacenaje y mantener amplitud, aprovechando al máximo la altura disponible.
Otro desafío fue diseñar estancias con identidades propias, especialmente una tercera habitación multifuncional, sin romper la armonía general.
Finalmente, integrar cocina y salón sin perder elegancia ni funcionalidad requería un equilibrio sutil en materiales, iluminación y mobiliario, para lograr un conjunto fluido y acogedor.
Solución
Para resolver los problemas estructurales, se proyectaron refuerzos que respetaran el diseño original, integrándose con naturalidad en la estética general. La distribución se replanteó con una estrategia clara: aprovechar al máximo la altura. Se diseñaron soluciones de almacenaje vertical a medida que liberan superficie útil y refuerzan la sensación de orden y amplitud.
La forma alargada del piso nos llevó a buscar respuestas creativas: zonas de almacenamiento integradas, aprovechamiento de huecos y una paleta de materiales cálidos, como la madera, en tonos claros, que suman serenidad y luminosidad. La iluminación, planificada por capas, y una selección precisa de mobiliario completan una vivienda equilibrada y personal.
Cada estancia mantiene su propia identidad, pero dentro de un lenguaje común de materiales y color. En la habitación multifuncional, piezas versátiles permiten adaptar el espacio según el uso: descanso, lectura o invitados. Así, se logra flexibilidad sin perder coherencia visual.
Para la zona de día, se trabajó una integración sutil entre cocina y salón. Los materiales neutros, la iluminación regulable y el mobiliario a medida actúan como puente entre ambos usos, asegurando continuidad visual y una atmósfera cómoda y fluida en todo momento.
Proyecto de distribución

